Hospital / Stretcher Passenger Elevator

Hospital / Stretcher Passenger Elevator

Hospital / Stretcher Passenger Elevator

Special Purpose

Hospital‑Grade

Capacity

1000–2000 kg (stretcher use, configuration dependent)

Speed

1.0–1.75 m/s (project dependent)

Travel Range / Floors

Project dependent

Power Supply

Three‑phase (recommended)

A hospital‑grade elevator built for safe, stable movement of patients, staff, and stretchers—prioritizing smooth levelling, wider door configurations, and dependable emergency systems.

Project Overview


Product Name
Individual HOME & VILLA ELEVATOR

Quick Specs

  • Capacity: 1000–2000 kg (stretcher use, configuration dependent)

  • Speed: 1.0–1.75 m/s (project dependent)

  • Travel range / Floors: Project dependent

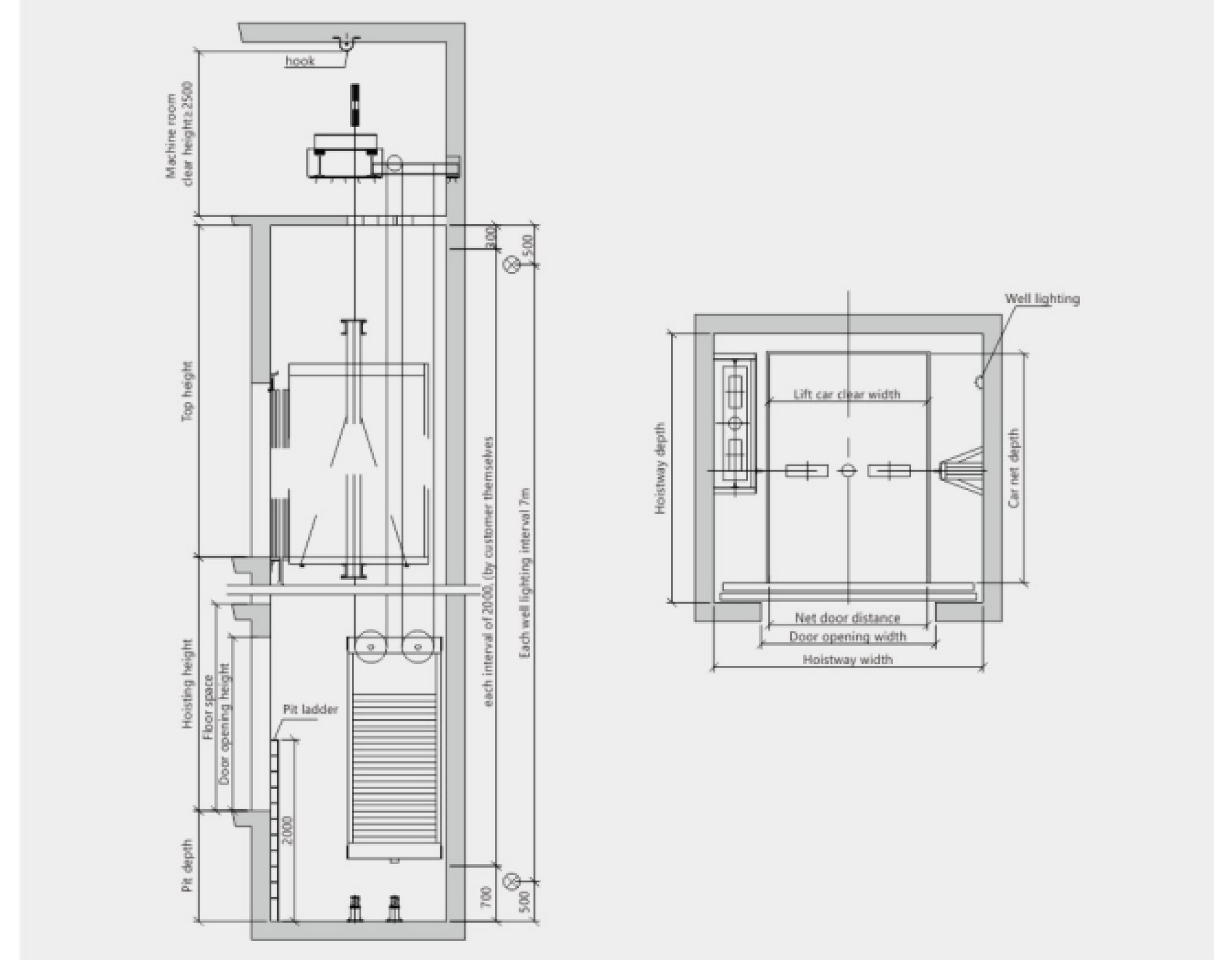
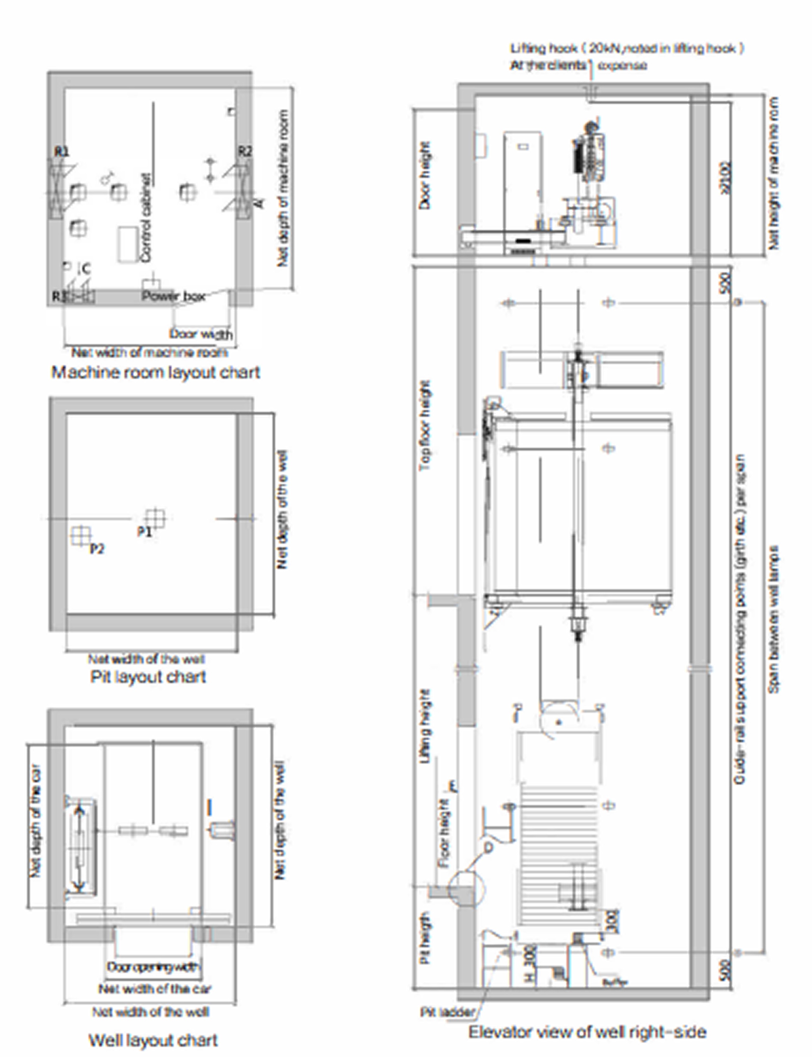
  • Door opening width: 900–1200 mm (as applicable)

  • Drive configuration: MR / MRL

  • Power supply: Three‑phase (recommended)

Technology

  • Traction drive options selected based on building height and duty cycle.

  • Integrated controller with VVVF drive for smooth acceleration/deceleration and accurate levelling.

Safety Standards

  • Overspeed governor and safety gear (as applicable)

  • Auto Rescue Device (ARD) / emergency lowering (as applicable)

  • Door safety sensors / light curtain

  • Emergency alarm and emergency light

  • Two‑way communication (intercom) (as applicable)

  • Fireman’s switch / fire recall (where applicable)

  • Overload protection

  • Manual rescue provisions

  • Designed to meet applicable BIS/IS safety requirements and relevant EN standards, as applicable.


Specialty & Applications

  • Stretcher‑friendly movement with stable levelling and controlled ride characteristics.

  • Suitable for hospitals, clinics, and medical campuses.

Cabin Options – design & finishes

  • Easy‑clean, durable finishes suited for clinical environments (as applicable)

  • Wider door configurations and practical handrails (as applicable)

Project shots

Other Products

Explore our other products