Car Elevator (Vehicle Lift)

Car Elevator (Vehicle Lift)

Car Elevator (Vehicle Lift)

Commercial

Vehicle

Capacity

3000–5000 kg (typically one car, project dependent)

Speed

0.3–1.0 m/s (project dependent)

Travel Range / Floors

Project dependent

Power Supply

Three‑phase (recommended)

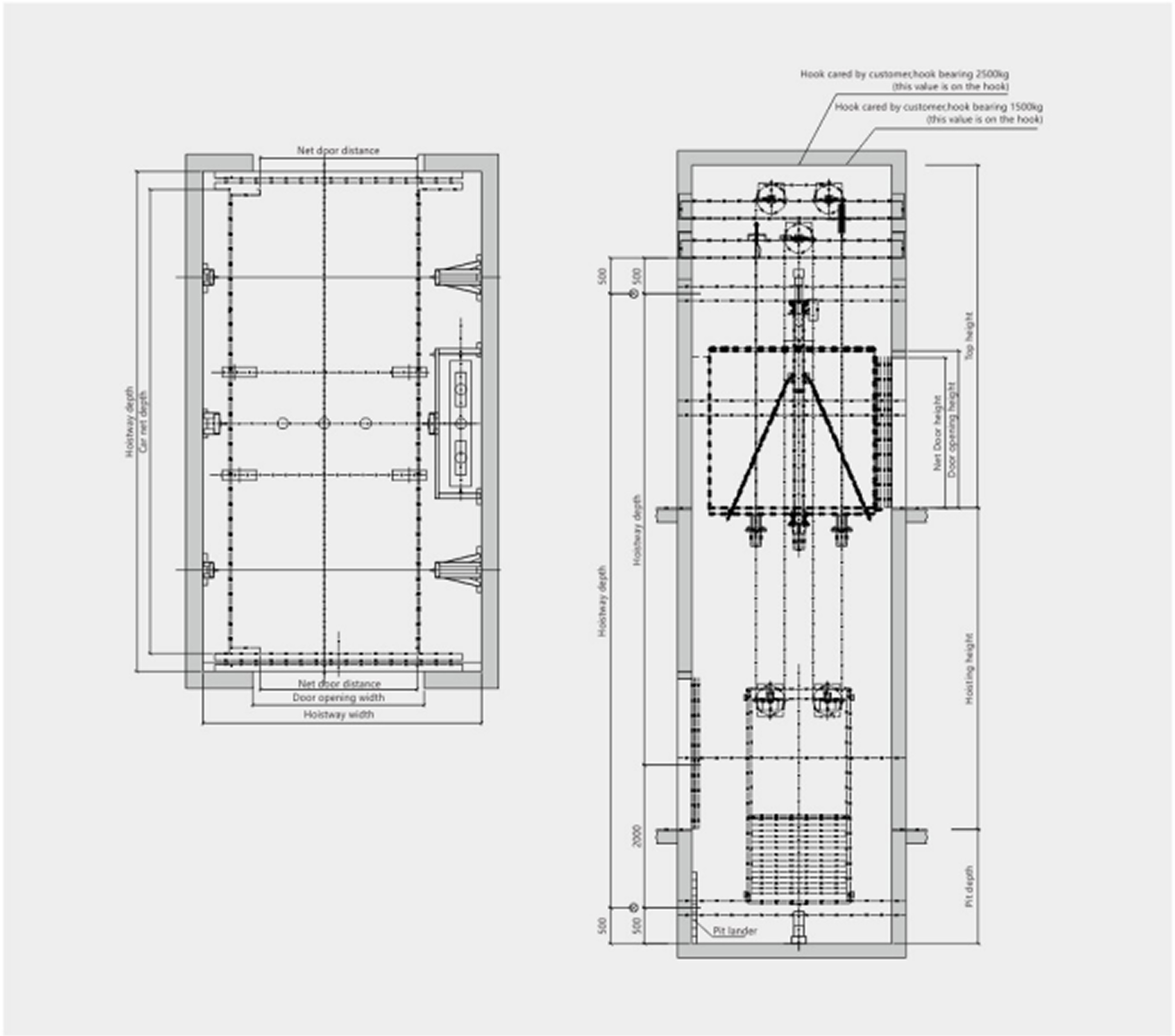
A heavy‑duty vehicle lift engineered to move cars safely between floors. Built around robust load handling, vehicle alignment, and door sizing for smooth entry and exit.

Quick Specs

  • Capacity: 3000–5000 kg (typically one car, project dependent)

  • Speed: 0.3–1.0 m/s (project dependent)

  • Travel range / Floors: Project dependent

  • Cabin size: Project specific (typically ~2.5–2.8 m wide × 5.3–6.0 m deep)

  • Door opening: Project specific (typically ~2.3–2.6 m wide; height as applicable)

  • Drive configuration: MR / MRL / Hydraulic (as applicable)

  • Power supply: Three‑phase (recommended)

Technology

  • Drive selection based on building constraints and load class.

  • Controlled movement and accurate levelling for safe vehicle alignment.

Safety Standards

  • Safety gear and overspeed protection (as applicable)

  • Door interlocks and safety monitoring

  • Emergency alarm and emergency light

  • Two‑way communication (as applicable)

  • Overload protection

  • Manual rescue provisions

  • Designed to meet applicable safety requirements and regulations, as applicable.



Specialty & Applications

  • Suitable for premium residences, car parking towers, showrooms, and commercial parking solutions.

  • Requires project‑specific engineering for cabin/door sizing and vehicle approach alignment.

Cabin Options – design & finishes

  • Premium cabin available: No

  • Durable interior and heavy‑duty flooring suited for vehicle loads (as applicable)

Project shots

Other Products

Explore our other products