Freight / Goods Elevator

Freight / Goods Elevator

Freight / Goods Elevator

Commercial

Industrial

Capacity

1000–5000 kg (project dependent)

Speed

0.3–1.0 m/s (project dependent)

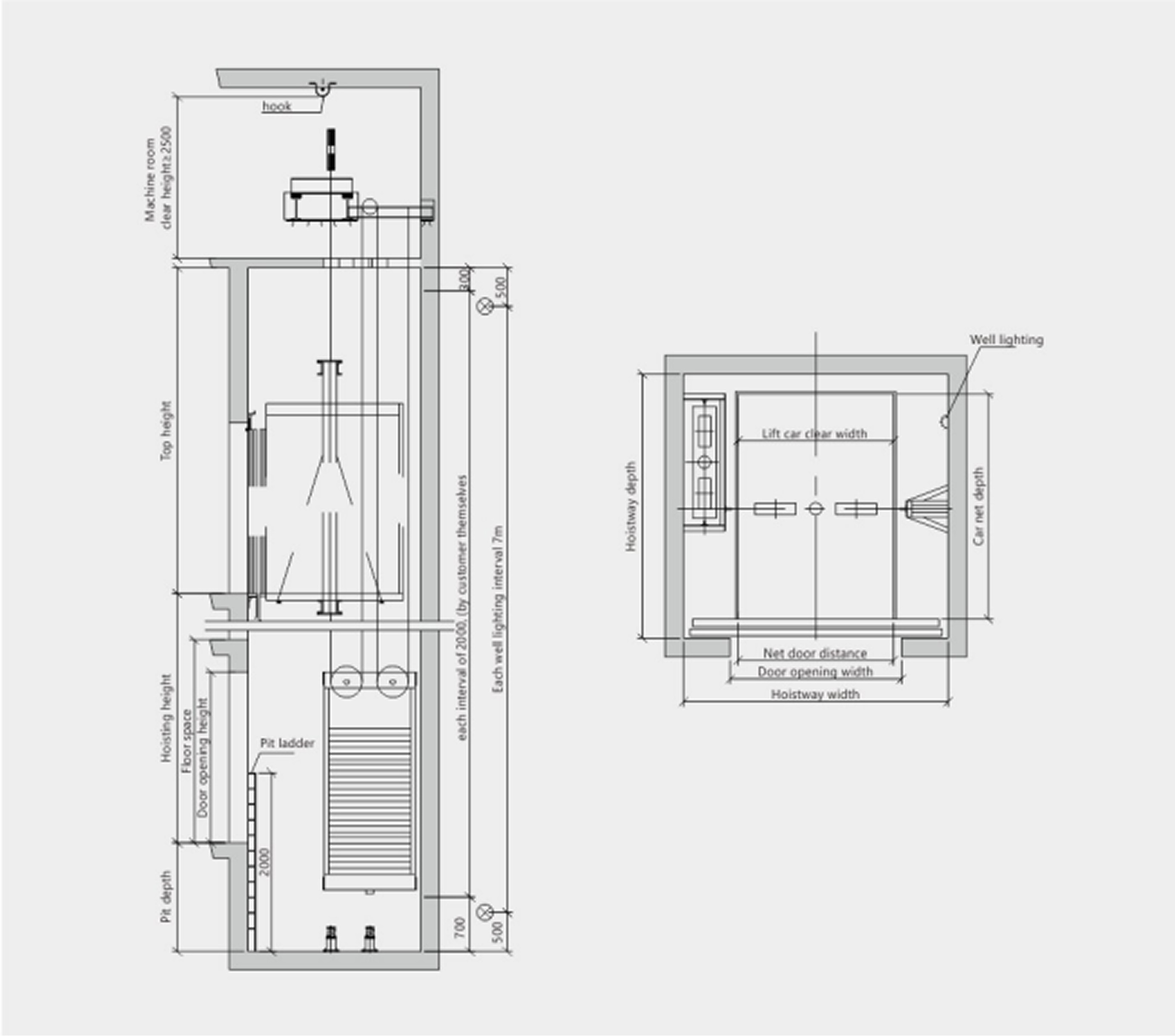
Travel Range / Floors

Project dependent

Power Supply

Three‑phase (recommended)

A robust goods elevator designed for safe material movement in industrial and commercial environments. Built for load stability, dependable operation, and heavy‑duty door configurations.

Product Overview


Project Name
Residential Passenger Elevator (Apartments)

Quick Specs

  • Capacity: 1000–5000 kg (project dependent)

  • Speed: 0.3–1.0 m/s (project dependent)

  • Travel range / Floors: Project dependent

  • Drive configuration: MR / MRL

  • Door type options: manual / semi‑automatic / automatic (as applicable)

  • Power supply: Three‑phase (recommended)

Technology

  • Drive options selected based on load class and travel requirements.

  • VVVF control for controlled acceleration/deceleration to reduce load‑shift shocks.

Safety Standards

  • Safety gear and overspeed protection (as applicable)

  • Door interlocks and safety monitoring (as applicable)

  • Emergency alarm and emergency light

  • Overload protection

  • Manual rescue provisions

  • Designed to meet applicable safety requirements and regulations, as applicable.




Specialty & Applications

  • Built for heavy loads and practical usage: durable interiors, strong flooring, and door configurations suited to material handling.

  • Suitable for factories, warehouses, and logistics operations.

Cabin Options – design & finishes

  • Premium cabin available: No

  • Durable interior: painted steel / stainless steel (as applicable)

  • Heavy‑duty flooring suited for trolleys and pallets (as applicable)

Other Products

Explore our other products